99
65
33
东城国际小区团装正在进行中……

参加团装活动享受哪些优惠政策
图片或者文字排版出来即可
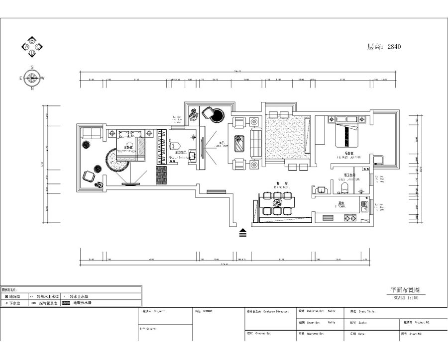
装修设计的效果图最好再加上户型图







| 团装小区 |

参加团装活动享受哪些优惠政策
图片或者文字排版出来即可
装修设计的效果图最好再加上户型图






